Situation :
In Allplan wurde mit Bauteilen ein Gebäude EG modelliert und dann ausgegeben als IFC 4.0 und dem Tragwerksplaner oder auch Partnerplaner geschickt um dieses zu überprüfen bzw. zu überarbeiten.
Wie dokumentiert man den Änderungsverlauf des Ausgangsmodells durch die immer wieder neuen eingelesenen Änderungen aus IFC Modelle und wie pflegt man diese Änderungen ein.
BIM Workflow Änderung – ALT NEU Vergleich – Modellzustand
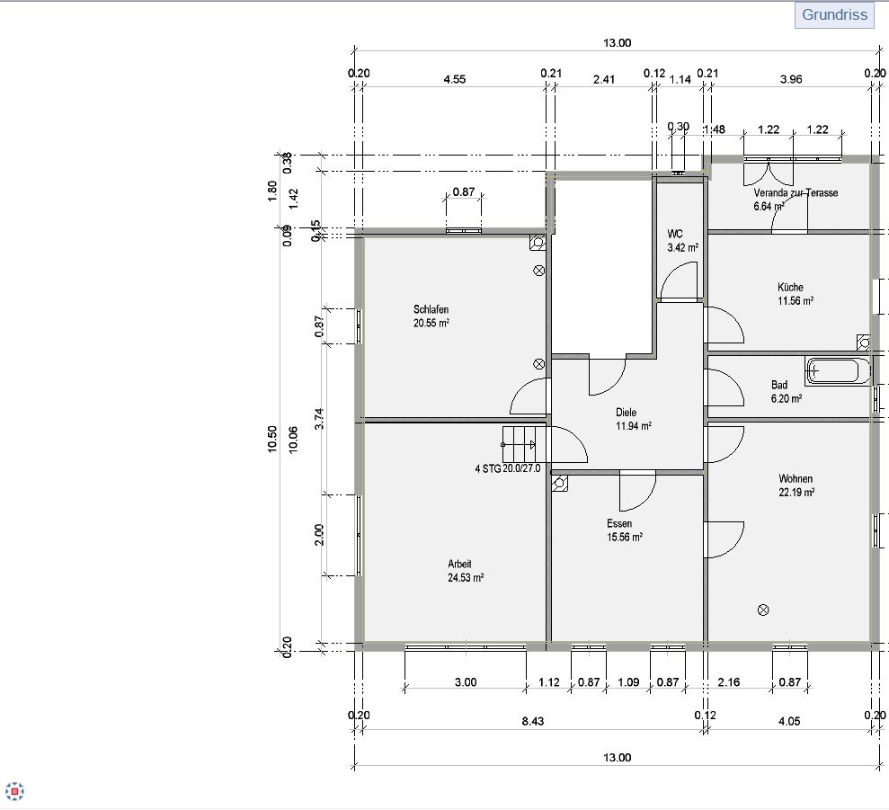
1. Ausgangsmodell A Draufsicht:

Ausgangsmodell A
2. Änderungsmodell B : Nach Änderung der beiden Räume links und löschen der Trennwand zwischen Diele und Essen Modell Draufsicht:

Ausgangsmodell B
3. Nach Export Ausgangsmodell A und Import des IFC Änderungsmodell B werden beide Modelle A und B übereinander gelegt im Ursprung . Mit der BIM Workflow Funktion über Extras Alt-Neu-Vergleich werden die beiden Ausgangszustand und Zielzustand Teilbilder auswählt und vergleichen:

Zustandsvergleich in ALLPLAN
4. Änderung sind in z.B. rot dargestellt für die Kommuniktion untereinander im Workflow als auch die Nacharbeitung im Ausgangsmodell:

In rot die Änderung des Fachplaners
Die obigen Änderungen können als komplette 2D Zeichnungen zur Dokumentation abgespeichert werden oder auch als Checkliste für den Verlauf des Modells oder zur Planungs-Besprechung benutzt werden.
TIP für Architekten:
Eine Überschreibung beim Einlesen des originalen Ausgangsmodells empfehlen wir nicht da dann im Prozess entstehenden Ideen und Weiterentwicklungen überschrieben werden. Eher eine bewusste manuelle Einpflege der Änderung oben.
Ich hoffe wir konnten Euch weiterhelfen, für weitere Fragen oder auch Bestellungen könnt Ihr Euch selbstverständlich gerne wieder an uns wenden.
Viel Spass mit Allplan wünscht Euch
Dipl.-Ing. (FH) Frank Will