Wie kann ich die Layer in Nemeschek Allplan 2013 schnell ein und ausblenden bzw. vorwärts und rückwärts schalten?
Antwort:
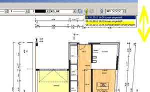
Mit Layersichtbarkeiten vorwärts, Verlauf der Layersichtbarkeiten, Layersichtbarkeiten zurück macht Ihr Änderungen an der Layersichtbarkeit rückgängig bzw. stellt rückgängig gemachte Änderungen wieder her.
Mit Verlauf der Layersichtbarkeiten könnt Ihr den Änderungsverlauf der Layersichtbarkeiten anzeigen lassen und bis zu 30 Änderungen rückgängig machen:

Ich hoffe, mit diesen Informationen konnte ich Euch weiterhelfen, für weitere Fragen könnt. Ihr Euch selbstverständlich gerne wieder an uns wenden.
Viel Spass mit Allplan 2013 wünscht Euch
Frank Will